Ház eladó

Gödöllő, Kertváros városrész
152.900.000 Ft
€ 392.222
4 szoba 4 szoba
145 nm 145 nm
1 fürdő 1 fürdő

Ház eladó

Gödöllő, Kertváros városrész

Leírás

Új építésű kulcsrakész lakás Gödöllőn – magas műszaki tartalommal!

Gödöllőn kínálunk eladásra egy új építésű 145 négyzetméteres, földszintes lakás, 559 négyzetméter telekkel, amely modern kialakításával, minőségi anyaghasználatával és energiatakarékos megoldásaival tökéletes választás.

Főbb jellemzők:

Falazat:
30 cm vastag csiszolt Porotherm tégla biztosítja a kiváló hő- és hangszigetelést.

Külső nyílászárók:
Öt légkamrás műanyag ablakok háromrétegű hőszigetelt üvegezéssel.

Hőszigetelés és homlokzat:
12 cm vastag grafitos dryvit rendszer, nemesvakolattal ellátva.

Külső teraszok Hideg burkolat 6500 Ft/nm.

Belső falazat:
10 cm-es tégla válaszfalak

Burkolatok:
A belső burkolatok teljes mértékben a vevő választása szerint kerülnek kivitelezésre.

Beltéri ajtók:
60.000 Ft//db értékű.

Fürdőszobai felszereltség (terv szerint):

Mosdó: 15.000 Ft/db

Csaptelepek: 12.500 Ft/db

Kád: 50.000 Ft lábbal

WC: 16.500 Ft/db öblítő rendszerrel (ülőke nélkül)

Kádtöltő, zuhanyfej, egyéb szerelvények az alapárban!

Fűtés és melegvíz:
Korszerű Atlantic Loria 8kW hőszivattyú, beépített melegvíz-tárolóval, valamint padlófűtés az egész lakásban.

Riasztó és klímaberendezés elektromos előkészítése.

Kialakítás:

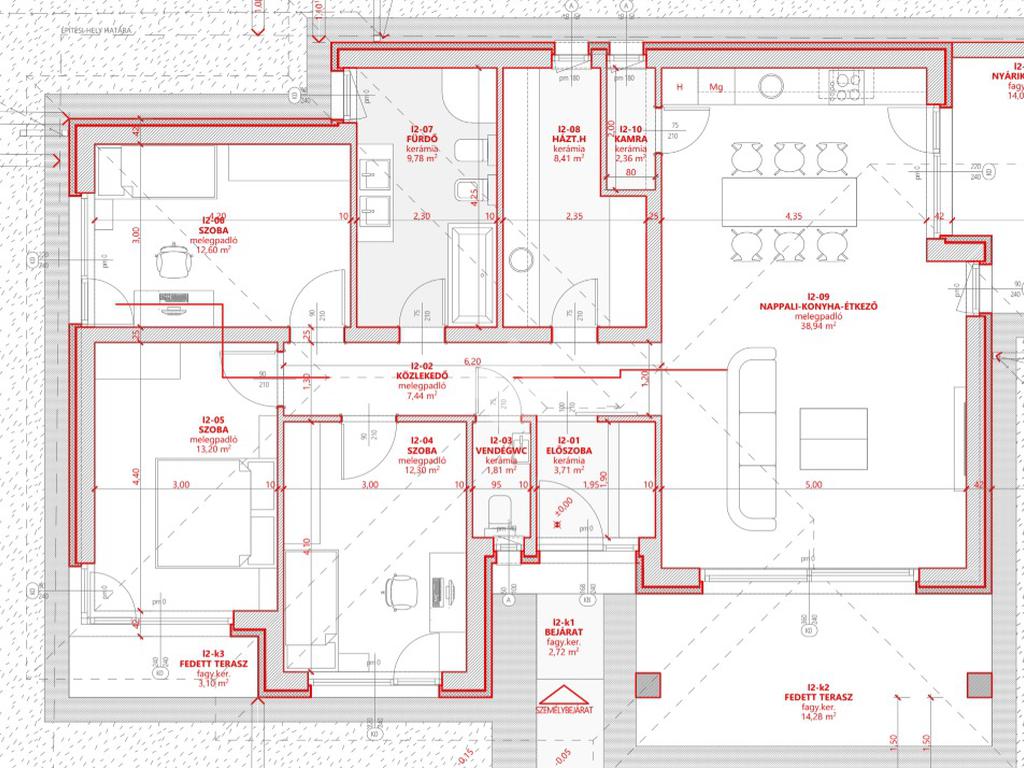
Amerikai konyhás nappali + étkező, 3 szoba, háztartási helyiség, fürdő+wc, előszoba, 2 db fedett terasz, nyárikonyha.


Környék:

Közelben számos bevásárlási lehetőség, gyógyszertár, játszótér, edzőterem. Az M3-as autópálya pár perc alatt közelíthető meg. Közelben 14, 24, 45, 4, 4A, 2, 2A, 402 buszjáratok érhetők el.

FINANSZÍROZÁS:

Az ingatlan banki finanszírozással is megvásárolható, melyben irodánk ingyenes tanácsadással áll rendelkezésükre!

IRÁNYÁR: 152,9 M Ft.

VEVŐINK RÉSZÉRE A KÖZVETÍTÉS DÍJTALAN

A hirdetésben szereplő adatok tájékoztató jellegűek.

Összes mutatása

Tulajdonságok

Ref.:
58872
Állapot:
Új
Emelet:
Földszint
Lift:
Nincs
Fűtés:
Házközponti (Hőszivattyús fűtés)
Építőanyag:
Tégla
Összes mutatása

Energetikai tanúsítvány

Ennél az ingatlannál az energetikai tanúsítvány folyamatban van
Építés éve:
2026

Vegye fel velünk a kapcsolatot

* Ez a mező kötelező
Franchisee
Tec 17 Ingatlan Kft.
1173 Budapest, Pesti út, 19.
1173 Budapest, Pesti út, 19. XVII. kerület
Hétfő-Péntek: 09:00-19:00, Szombat: 09:00-13:00

Munkatársaink


  • Erzse Csaba
    Irodatulajdonos

  • Brigitta Andrea Kenderesi
    Asszisztens

  • Dávid Epres
    Képviselő
Franchisee
Tec 17 Ingatlan Kft.
1173 Budapest, Pesti út, 19.
Tecnocasa Group Logo

Minden ügynökségnek saját tulajdonosa van és önállóan működik.

árfolyam 22/10/2025
EUR 389.83 HUF

cégünk

Elérhetőségeink

2025 Gruppo T.F.M. Szolgáltató Zrt. - P. IVA 27421275-2-42 - 1068 Budapest, Király utca 102.. Minden ügynökségnek saját tulajdonosa van és önállóan működik.

Adatvédelmi irányelvek | Cookies tájékoztató