Ház eladó

Gödöllő, Kertváros városrész
124.900.000 Ft
€ 320.396
5 szoba 5 szoba
141 nm 141 nm
2 fürdő 2 fürdő

Ház eladó

Gödöllő, Kertváros városrész

Leírás

Gödöllőn, Kertvárosban, Új építésű, 2 szintes ikerházfél eladó!

Eladásra kínálunk egy 141 m²-es, modern ikerházfelet, amelyhez 272 m² saját telekrész tartozik.

Az ingatlan 2026 első felében kerül kulcsrakész állapotba.

Az épület társasházzá lesz nyilvánítva.

Jelenleg egyénileg választhatóak a burkolatok, nyílászárok és szaniterek,

Utólag beépíthető átfogó tokos ajtó, bruttó 60.000 Ft/db, összeghatárig, a megrendelő igénye szerint.

Burkolatok: meleg burkolatköltsége szegély nélkül 5.500 Ft/ nm-ig.

Kültéri burkolatok: terasznál fagyálló gres hidegburkolat 6.500 Ft/nm, az ehez tartozó anyagok, fugák, élvédők és munkadíjai szintén az eladó költsége.

Választható szaniterek költség határa:

Kád: 50.000 Ft/db összeghatárig.

Kádtöltő csaptelep 25.000 Ft/db összeghatárig

Zuhany csaptelep 25.000 Ft/db összeghatárig

Standardmosdó 25.000 Ft/db összeghatárig

Mosdó csaptelep 20.000 Ft/db összeghatárig

Wc+tartály 45.000 Ft/db összeghatárig.

Főbb jellemzők:

Falazat: 30 cm Porotherm tégla

Válaszfalak: 10 cm Porotherm

Szigetelés: 15 cm grafitos dryvit a homlokzaton, aljzatban 10 cm szigetelés

Tető: Bramac cserép, tetőtérben 25 cm üveggyapot hőszigetelés

Fűtés: Energia hatékony hőszivattyús rendszer

Kiváló hő- és hangszigetelés

Stabil, beton alap

Parkolás: Saját 1 állásos garázs

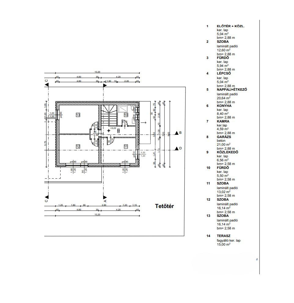
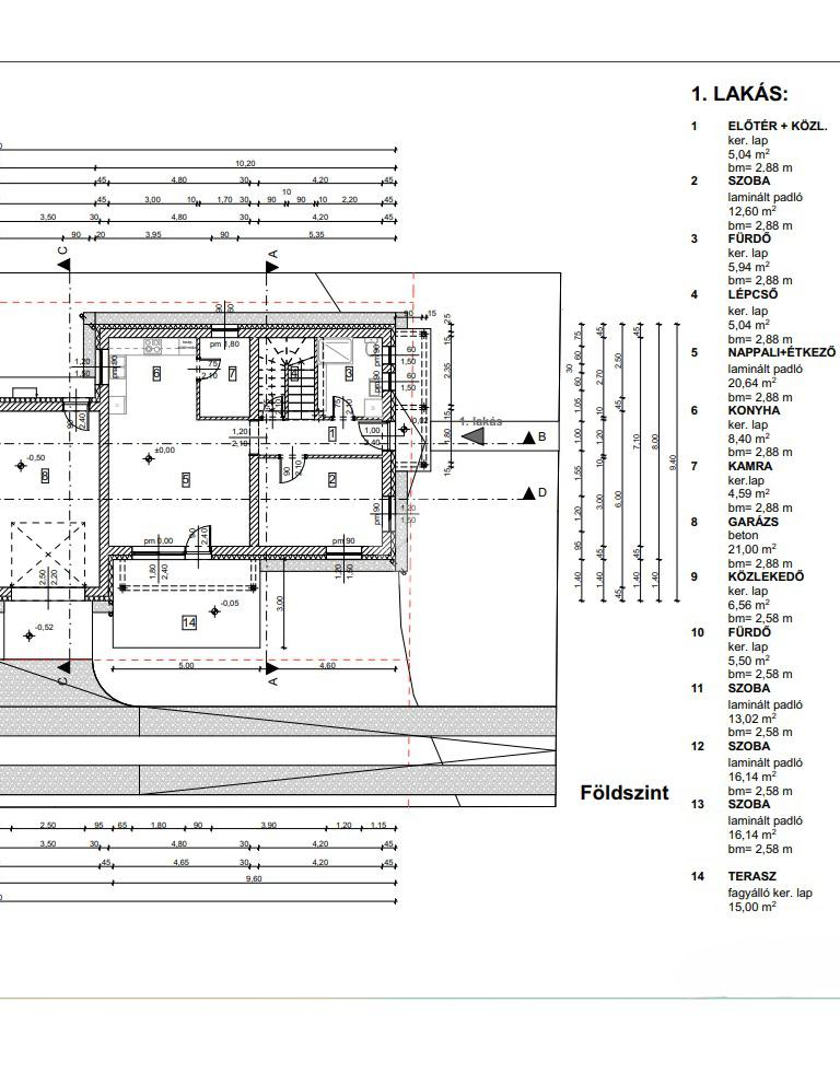
Elrendezés:

Földszint: amerikai konyhás nappali, 1 szoba, zuhanyzós fürdőszoba + mellékhelyiség, kamra, tároló, közlekedő, kertkapcsolatos terasz

Emelet: 3 külön nyíló hálószoba, kádas fürdőszoba + mellékhelyiség, közlekedő

Környék:

Pár perc sétára a Mátyás Király utcai vasútállomás található. Az M3-as autópálya pár perc alatt közelíthető meg. Közelben 5, 45, 4, 4A, 24, 45 helyi buszjárat érhető el.

Finanszírozás:

Az ingatlan banki finanszírozással is megvásárolható, melyben irodánk ingyenes tanácsadással áll rendelkezésükre!

Irányár: 124,9 M Ft.

VEVŐINK RÉSZÉRE A KÖZVETÍTÉS DÍJTALAN

A hirdetésben szereplő adatok tájékoztató jellegűek.

Összes mutatása

Tulajdonságok

Ref.:
58745
Állapot:
Új
Lift:
Nincs
Fűtés:
Házközponti (Hőszivattyús fűtés)
Építőanyag:
Tégla
Parkoló:
garázs
Összes mutatása

Energetikai tanúsítvány

Ennél az ingatlannál az energetikai tanúsítvány folyamatban van
Építés éve:
2026

Vegye fel velünk a kapcsolatot

* Ez a mező kötelező
Franchisee
Tec 17 Ingatlan Kft.
1173 Budapest, Pesti út, 19.
1173 Budapest, Pesti út, 19. XVII. kerület
Hétfő-Péntek: 09:00-19:00, Szombat: 09:00-13:00

Munkatársaink


  • Erzse Csaba
    Irodatulajdonos

  • Brigitta Andrea Kenderesi
    Asszisztens

  • Dávid Epres
    Képviselő
Franchisee
Tec 17 Ingatlan Kft.
1173 Budapest, Pesti út, 19.
Tecnocasa Group Logo

Minden ügynökségnek saját tulajdonosa van és önállóan működik.

árfolyam 22/10/2025
EUR 389.83 HUF

cégünk

Elérhetőségeink

2025 Gruppo T.F.M. Szolgáltató Zrt. - P. IVA 27421275-2-42 - 1068 Budapest, Király utca 102.. Minden ügynökségnek saját tulajdonosa van és önállóan működik.

Adatvédelmi irányelvek | Cookies tájékoztató